如何看办公室室内设计图纸
2017-11-08 18:19 来源: 容腾装饰
如何看办公室室内设计图纸,设计图纸是施工的基础,专业办公室设计师经常遇到在和一些客户就设计方案和设计图纸沟通的时候,往往还要详细介绍说明图纸,有不少客户表示看不懂图纸,那么普通消费者在审查设计图纸时,重点应该注意些什么呢?看设计图纸应从大处着想,细处着手,总体与细部相结合,深入推敲,局部与整体协调统一,结合设计师的解释说明,对整套图纸做全面的理解。
办公室装修设计图一套完整的商业空间装修设计方案应该包含哪些图纸呢?
1、设计总说明;针对办公室设计方案的设计风格、材料施工、施工工艺以及设计理念等做 一个设计说明
2、原始建筑测量图
原始建筑测量图包括房间的具体开间尺寸、墙体厚度、层高、房间梁柱位置尺寸、门窗洞口的尺寸位置、各项管井(上下水、煤气管道、空调暖管、进户电源)的位置、功能、尺寸等项目,它是一切设计图纸的基础,如果一开始的测量图纸出现偏差,此后的设计图纸和施工都会因此出现误差,导致整个工程无法正常进行。因此,要重点把握原始建筑测量图!、
3、建筑改建平面图
建筑改建平面图是根据设计方案将需要改动结构的墙体在图纸上标明的标识,比较常见的表示方法是在图纸上可以用虚线表示需要拆除的墙体,深色表示改建的墙体。
4、总平面图(多层办公室装修等需要分开);
5、各部位立面图及剖面图;
6、给水走向图
给水走向图是关于厨房、卫生间等处的给排水线路的布置图、给水管道的管径尺寸、取水位置及高度、管线排布系统等是该图的重点。在水路施工中要十分注重,要以此图为基础。
7、节点大样图;
8、强弱电布置图
装修细节须清楚 教你装修图纸的小知识强弱电布置图是关于居室内部所有强电和弱电的布置的。房间里所有开关的位置,及每个开关所控制的电器、灯源。
9、固定家具制作图;
10、地面材质图
地面材质图,顾名思义是关于地面材质的任何内容的。它标明需要铺设的地面材料种类、地面拼花、材料尺寸及不同材料分界线。
11、电器平面图;
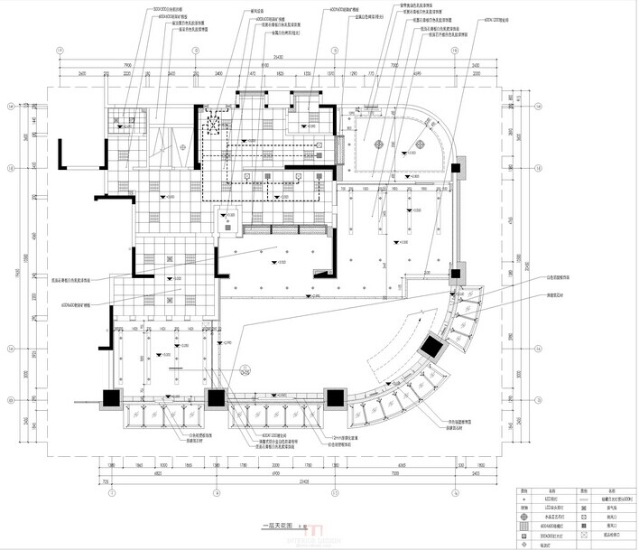
12、天花吊顶布置图
天花吊顶布置图是天花吊顶装修项目中最重要的图纸之一。它要求标明天花造型的尺寸定位、灯具位置及详图索引,并应标注天花底面相对于本层地面建筑面层的高度,同时还要注全各房间的名称。
13、电器系统图;
14、给排水平面图(涉及改造部分);
15、顶视图;
16、配电系统图
配电图是设计图纸中十分重要的一部分,各种电源插座的位置都需要妥善安排,业主在查看配电图时,需要注意的是插座的位置、数量,位置的安排要根据实际使用的方便性安排,综合考虑门窗、家具的安排,不能让插座被门窗遮蔽,影响正常使用。在此小编需要提醒的是,在数量上也不能一味地追求节俭,要根据家中电器的数量和种类安排,还要适当地留出富余。
17、建筑立面图(独体建筑办公室装修);
18、装修材料表。
教你如何看懂一些简单的图纸
1、图纸的比例;设计师的设计方案中可能有一个很漂亮的造型吊顶,然而现场制作出来后,我们发现与设计相差甚远。其实检查原因,就是没计师没有按照施工图纸来制作效果图,而是将图纸当作美丽的图画来创作。所以,一张设计图纸必须按照严格的比例来绘制,施工图与效果图要一致。
2、详细的尺寸;有些设计师没有在施工现场作认真测量,所以图纸中很多尺寸被遗漏了,尤其是一些关键尺寸,如果在设计时没有掌握,有可能在施工时会产生设计与施工脱节的情况。很多装饰公司都在图纸上都标明“如果图纸尺寸与现场实际尺寸有差异,一切以施工现场为准”等提示。这实际上是在掩饰设计师低劣的绘图水平,就新房装修而言。经过精心测量后所绘制出来的图纸,图面尺寸与现场尺寸相差不会超过20mm,这完全不影响正常的施工,更不用在图纸上声明了。
3、项目选择的材料;在设针图纸上应该标注主要材料的名称、规格和品牌,这对于今后施工人员依照图纸施工很有利,大幅度提高了施工效率,可以避免不必要的返工。
4、简单的制作工艺;在施工图纸中标注必要的制作工艺是为了约束施工员在施工过移中偷工减料,保证装业主得到一本与装修合同相符的工程硕目,在签订装修合同之前,一定要求设计师在图纸和预算上标注简单的制作工艺。是装修业主自己采购大部分主材,施工单位采购小部分主材和全部辅材。但是,材料采购是一个比较复杂的过程,需要消耗大量的时间和精力、很多装修业主就将此全部转给工程承包方采购。例如,在装修合同中本来约定使用某品牌的木芯板,但是在施工时却发现。装饰公司或承包者采购了其他品牌的产品。此外,工地本来计划明天使用墙砖。但是业主还没有决定到哪里去买,这些都会影响工程的进度和质量。因此,在这里需要特别提示,在合同当中应该约定采购材料的种类、品牌、规格、数量、参考价格、供应时间和签收人。
审查设计图纸时需要注意些什么?
1、看图纸比例是否合理,很多消费者喜欢看效果图,却往往忽视了施工图,但是,效果图上漂亮的造型,现场制作出来以后,却往往与设计图纸上相差甚远。其实检查一下原因,就是设计师没有按照施工图纸来做设计图纸,而是把图纸按照美丽的图画来制作的。所以,一张设计图纸必须按照严格的比例来制作。
2、看详细尺寸是否规范,有些设计图纸由于设计师没有在准备施工的现场作认真细致的测量,所以很多尺寸在设计时有遗漏,尤其是一些关键尺寸如果在设计时没有掌握,有可能在施工时产生设计与施工脱节的情况。
3、看选择材料是否明晰,最常关注装饰公司的报价单,担心上当受骗,一项项地仔细检查,其实在设计图纸上也应该标注出来主要材料的名称以及材料的品牌,这对于今后施工人员依照图纸施工很有利。
4、看制作工艺是否标注,在施工图纸中标注必要的制作工艺是为了一方面是便于施工,同时也能起到约束施工人员在施工过程中偷工减料的作用,保证消费者得到一个与合同洽谈相符的工程项目。

