办公室装修空间是载体平面是灵魂
2017-11-09 10:44 来源: 容腾装饰
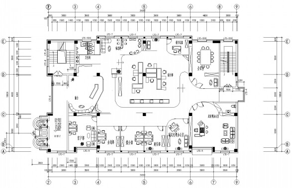
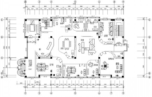
办公室装修空间是载体平面是灵魂,空间是载体,有如一部等待填入文字和符号的文本。人的本质与性情扮演着纷纭辞气,笔翰寄处下,往往让空间变得多元而富有想象力。平面设计就是灵魂一切的装修、装饰、施工都是围绕平面展开的。
俗语说的好,兵马未动、粮草先行。在我们做任何事情之前,都要提前做好我们的准备工作。对于上海办公室装修而言,办公室装修平面布局图就是大军未动之前的粮草,只有做好了平面布局图,我们的工作才可以继续进行,在进行装修时才有据可依。
办公室装修平面布局图在我们装修过程中有着至关重要的作用,它直接影响着我们的工作的有效性和舒适性。可以这样说,在办公室装修设计中,平面布局是整个设计的结构因素,我们在平面布局中合理安排职能区域,办公家具摆放等。

办公室装修空间是载体平面是灵魂
办公室装修空间是载体平面是灵魂
上一篇 :
上海丽人丽妆办公...
下一篇 :
办公室平面布局方案

