办公室平面布置图布局图
2017-11-09 10:39 来源: 容腾装饰
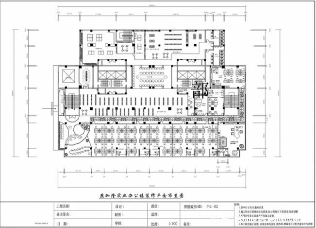
办公室平面布置图布局图,布置图也就是办公室设计方案通过平面布置的方式呈现出来,小迪给大家介绍过整套办公室设计平面图和设计师在操作的过程中办公室平面图设计规范等内容那么设计师在画办公室设计平面布局图要考虑哪些因素呢?

办公室平面布置图或者是布局图都是设计师把对办公空间环境设计的想法通过CAD图纸展现出来,布置图或是布局图是根据业主的要求以及设计师的设计理念把办公空间划分若干个区域前台、员工办公区、接待区、休息区、机房、会议室、经理1室、经理2室、总经理室、董事长室等区域划分。当然平面布置图出来没有那么简单要考虑的因素也很多办公室设计造型、办公室照明设计、办公家具设计、办公采暖设计、办公室动线设计、办公室风水设计等等内容。

一般情况下办公室装修公司设计师势必是处3-4套平面布局图或是布置图和客户沟通,经过双方的沟通协调最终修改更一份大家都满意的办公室平面布置图,有了这份满意的办公室平面布局图那么接下来的工作才能更顺利的开展。
上一篇 :
办公室装饰设计平...
下一篇 :
整套办公室设计平面图

