2000平方家具公司办公室平面设计
2017-11-09 10:34 来源: 容腾装饰
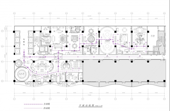
2000平方家具公司办公室平面设计,因为面积比较大而且客户也比较知道自己的需求,所以每个功能区域以及面积划分业主都有提供到,因为是做实体企业所有办公室设计中的展厅设计师作为重中之重的设计要点,展厅部分设计业主非常的满意,既要有设计感又大气。弧形流线挺不错整个效果注重体验的过程,艺术感强。
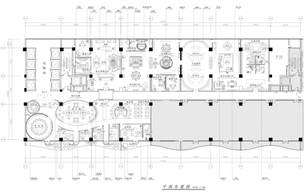
办公室装修要求:以体验为主,有设计感,前卫,洋气。功能需求:
办公室:业务部20个人(面积35平米),集中办公,四个大台,每台6个凳子
网络推广及电话营销部4人(面积10平米)。
采购部4人(面积12平米)。
后勤部、安装部5-10人(面积15平米),集体办公室,负责人卡座一个。
大会议室40人(面积40平米),多功能厅,开会、培训等。
总经理室兼休息1人(面积40平米)。
副总办2间,各面积10平米。
财务部2人(面积10平米)。
开放式设计部25人(面积60平米),要很有设计感,满足功能性,为公司核心部门。
展厅满足活动沙龙(水吧)(面积八十平米左右)。
美式区(面积150平米左右)。
新古典区(面积200平米左右)。
法式区(面积150平米左右)。
新中式区(面积150平米左右)。
儿童区(面积150平米左右)。
睡眠体验区(面积50平米左右)。
精品自选区(面积100平米左右)。
开放式材料室兼VIP洽谈区2个(面积100平米左右)。

上一篇 :
中国建设银行营业...
下一篇 :
办公室施工总平面图的设计原则

